Техническое описание технических дверей

Также важно понимать, какой способ монтажа приемлем для вашего варианта. Ведь это влияет на тип конструкции каркаса будущей двери и комплект необходимого крепежа.
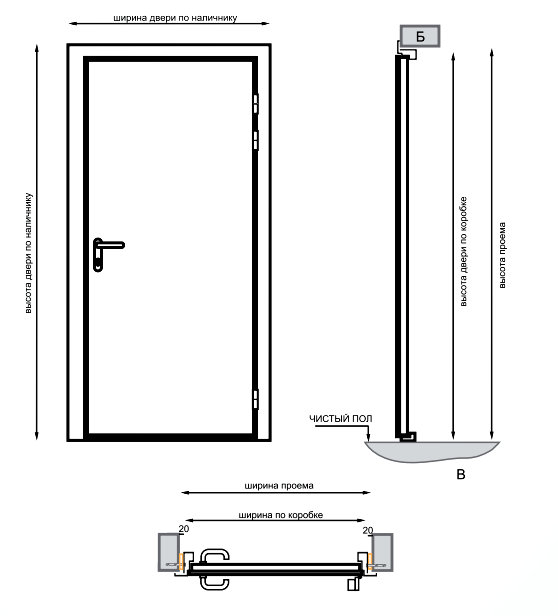
Схемы монтажа технической двери
Вариант №1. Дверь с наличником открывание наружу. Установка и вид с наружной стороны
Вариант №3. Дверь с наличником открывание во внутрь. Установка и вид с наружной стороны
| Вариант №2. Дверь без наличника открывание наружу. Установка внутрь проема. Вид с наружной стороны
Вариант №4. Дверь без наличника открывание во внутрь. Установка и вид с наружной стороны
|
Варианты конструкций дверей
Выбирайте конструкцию под ширину вашего проема. Однопольные двери или двупольные двери, с активными или нерабочими стоврками можно изготовить под ваш проем индивидуально.
Базовая комплектация технических дверей ДМТ
Дверь однопольная/ двупольная из стали 1,2 мм (1,4 мм), с порогом / без порога, коробка угловая с наличником по 50 мм с 3-х сторон / торцевая без наличника, наполнение базальтовая плита 50 мм, петли капли по 2 шт на полотно. Замок противопожарный, ручка на планке черная, цилиндр кл/ кл, уплотнение по периметру (Е для внутренних дверей) / (Е+Д для наружных дверей). RAL стандарт шагрень, открывание наружу, левая/ правая.
Варианты крепления двери в проем

Варианты исполнения порогов дверей
Задайте их нашему менеджеру +7 (495) 749-93-88
Или закажите бесплатную консультацию
Наши менеджеры рады обслужить вас
в рабочие дни с 9:00 до 18:00 по московскому времени














